Dorffeld / RH 4a
Wohnen in Perwarth-Randegg
3263 Perwarth-Randegg, Dorffeld
Doppelhaus
Miete mit Kaufoption
Miete mit Kaufoption-KP € 292.000,- lastenfrei
Bezugsfertig
VerfügbarkeitHaus
Objekttyp4
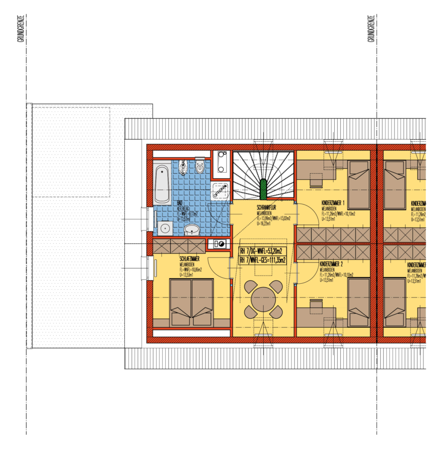
Zimmer111,21 m²
WohnflächeAufteilung und Ausstattung
Raumaufteilung
Zimmer: 4
Terrasse: 1
Zusätzliche Austattungen
Eigengarten
Keller
PKW-Stellplatz im Freien
Terrasse
Verfügbarkeitsdatum: bezugsfertig
Energieausweis: HWBSK 42.9 kWh/m² | fGEE in Arbeit
Kosten
Ihre Kosten setzen sich aus folgenden Positionen zusammen.
Finanzierungsbeitrag: 63.453,59 €
monatliche Kosten: 842,24 €
Ansichten und Pläne
Lage des Objekts
Dorffeld , 3263 Perwarth-Randegg, Österreich (auf Google Maps ansehen)
Hat diese Immobilie ihr Interesse geweckt?








