Stiege Haus 3 W3 / Top 02
Vergabe
VerfügbarkeitWohnung
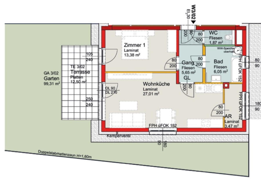
Objekttyp2
Zimmer57,43 m²
WohnflächeAufteilung und Ausstattung
Raumaufteilung
Zimmer: 2
Terrasse: 1
Zusätzliche Austattungen
Eigengarten
Einlagerungsraum
PKW-Stellplatz im Freien
Terrasse
Verfügbarkeitsdatum: 01.12.2026
Energieausweis: HWBSK 29.4 kWh/m² | fGEE 0.65 (Klasse A+)
Kosten
Ihre Kosten setzen sich aus folgenden Positionen zusammen.
Finanzierungsbeitrag: 19.752,89 €
monatliche Kosten: 570,14 €
Ansichten und Pläne
Lage des Objekts
Angerweg 3 , 2464 Arbesthal, Österreich (auf Google Maps ansehen)
Hat diese Immobilie ihr Interesse geweckt?
Sehr geehrte/r Interessent/in!
Vielen Dank für Ihre Nachricht! Die gegenständliche Wohneinheit wird über das NÖ-Wohnservice vergeben. Bei Interesse ersuchen wir Sie, sich direkt online beim NÖ-Wohnservice zu bewerben.
(Kontakt: www.noe-wohnservice.at bzw. 02742/22133

