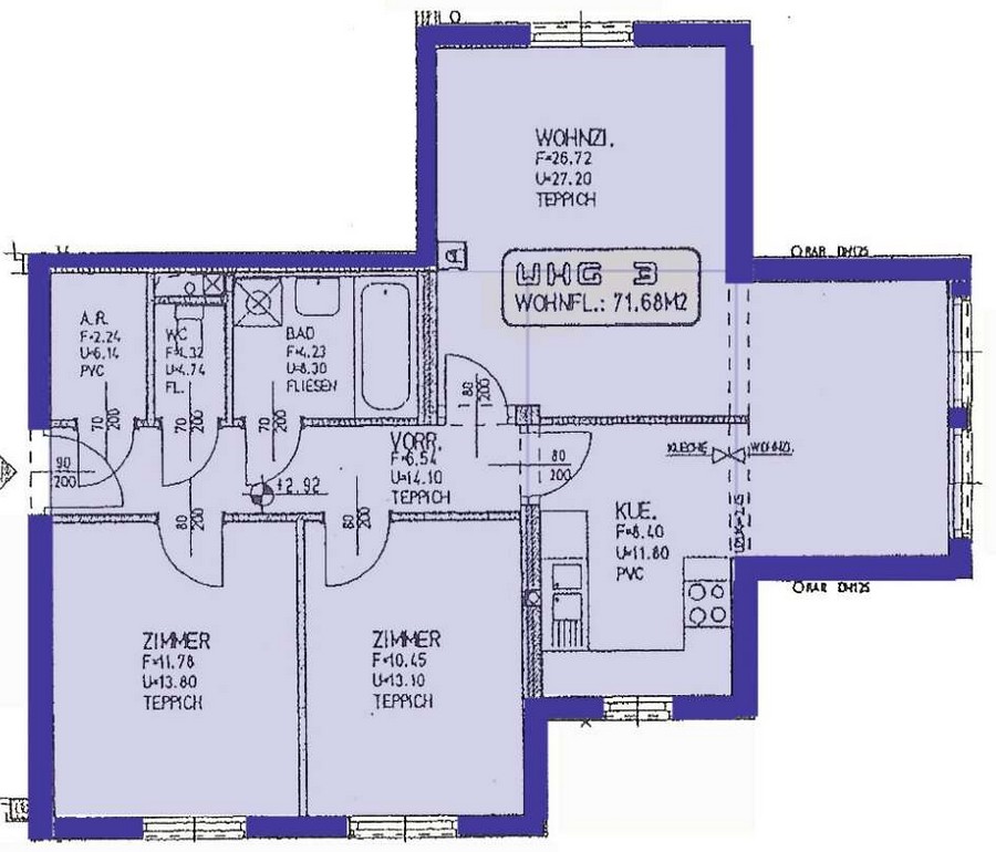
Stiege 1 / Top 3
Wohnen in Marchegg
2293 Marchegg, Fischergasse 6
Stiege 1 / Top 3
Miete
FB: Anzahlung von € 5.000,- möglich, Restbetrag wird auf 3 Jahre mit 3,5% Stundungszinsen gestundet
Bezugsfertig
VerfügbarkeitWohnung
Objekttyp3
Zimmer71,68 m²
WohnflächeAufteilung und Ausstattung
Raumaufteilung
Zimmer: 3
Zusätzliche Austattungen
Keller
PKW-Stellplatz im Freien
Verfügbarkeitsdatum: bezugsfertig
Energieausweis: HWBSK 71.68 kWh/m² | fGEE in Arbeit
Kosten
Ihre Kosten setzen sich aus folgenden Positionen zusammen.
Finanzierungsbeitrag: 22.297,65 €
monatliche Kosten: 527,43 €
Ansichten und Pläne
Lage des Objekts
Fischergasse 6 , 2293 Marchegg, Österreich (auf Google Maps ansehen)
Hat diese Immobilie ihr Interesse geweckt?

