Hauptstraße 13 / Top 08
Vergabe
VerfügbarkeitWohnung
Objekttyp2
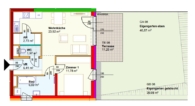
Zimmer53,50 m²
WohnflächeAufteilung und Ausstattung
Raumaufteilung
Zimmer: 2
Terrasse: 1
Zusätzliche Austattungen
Eigengarten
Einlagerungsraum
PKW-Stellplatz im Freien
Terrasse
Verfügbarkeitsdatum: 30.11.2026
Energieausweis: HWBSK 22.5 kWh/m² | fGEE 0.52 (Klasse A++)
Kosten
Ihre Kosten setzen sich aus folgenden Positionen zusammen.
Finanzierungsbeitrag: 21.595,24 €
monatliche Kosten: 546,28 €
Ansichten und Pläne
Lage des Objekts
Hauptstraße 13 , 2093 Geras, Österreich (auf Google Maps ansehen)
Hat diese Immobilie ihr Interesse geweckt?

