Markt 32 / RH 4
Wohnen in Edlitz - Markt
2842 Edlitz - Markt, Markt 32
Reihenhaus
Miete mit Kaufoption
Möglichkeit zur Stundung des Finanzierungsbeitrages mit 1 % p.a.
Bezugsfertig
VerfügbarkeitHaus
Objekttyp4
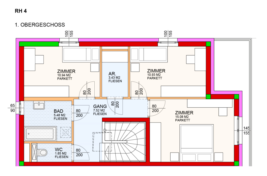
Zimmer110,26 m²
WohnflächeAufteilung und Ausstattung
Raumaufteilung
Zimmer: 4
Loggia: 1
Terrasse: 1
Zusätzliche Austattungen
Eigengarten
Loggia
PKW-Stellplatz Carport
Terrasse
Verfügbarkeitsdatum: 01.06.2026
Energieausweis: HWBSK 35.8 kWh/m² | fGEE 0.43 (Klasse A++)
Kosten
Ihre Kosten setzen sich aus folgenden Positionen zusammen.
Finanzierungsbeitrag: 74.717,28 €
monatliche Kosten: 1.121,20 €
Ansichten und Pläne
Lage des Objekts
Markt 32 , 2842 Edlitz - Markt, Österreich (auf Google Maps ansehen)
Hat diese Immobilie ihr Interesse geweckt?















