Obere Hauptstraße 40 / Top 05
Vergabe
VerfügbarkeitWohnung
Objekttyp2
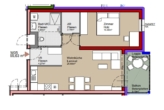
Zimmer55,63 m²
WohnflächeAufteilung und Ausstattung
Raumaufteilung
Zimmer: 2
Balkon: 1
Loggia: 1
Zusätzliche Austattungen
Balkon
Einlagerungsraum
Loggia
PKW-Stellplatz im Freien
Verfügbarkeitsdatum: 01.12.2026
Energieausweis: HWBSK 27.1 kWh/m² | fGEE 0.62 (Klasse A+)
Kosten
Ihre Kosten setzen sich aus folgenden Positionen zusammen.
Finanzierungsbeitrag: 5.006,70 €
monatliche Kosten: 532,36 €
Ansichten und Pläne
Lage des Objekts
Obere Hauptstraße 40 , 2222 Bad Pirawarth, Österreich (auf Google Maps ansehen)
Hat diese Immobilie ihr Interesse geweckt?



