Stiege Haus 3 W3 / Top 01
Vergabe
VerfügbarkeitWohnung
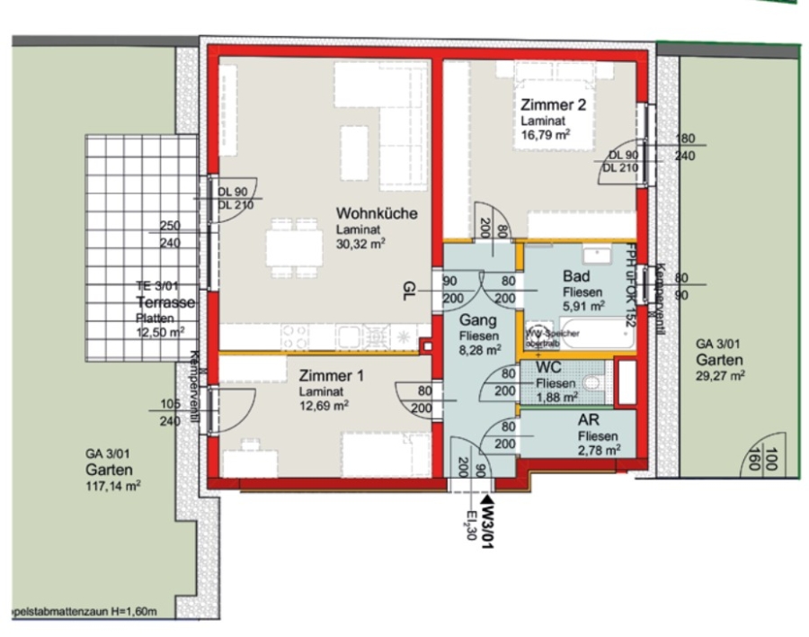
Objekttyp3
Zimmer78,65 m²
WohnflächeAufteilung und Ausstattung
Raumaufteilung
Zimmer: 3
Terrasse: 1
Zusätzliche Austattungen
Eigengarten
Einlagerungsraum
PKW-Stellplatz im Freien
Terrasse
Verfügbarkeitsdatum: 01.12.2026
Energieausweis: HWBSK 29.4 kWh/m² | fGEE 0.65 (Klasse A+)
Kosten
Ihre Kosten setzen sich aus folgenden Positionen zusammen.
Finanzierungsbeitrag: 30.956,03 €
monatliche Kosten: 764,75 €
Ansichten und Pläne
Lage des Objekts
Die dargestellte Position der Immobilie ist nur eine ungefähre Angabe.
Hat diese Immobilie ihr Interesse geweckt?


