Hauptstraße 13 / Top 03
Vergabe
VerfügbarkeitWohnung
Objekttyp2
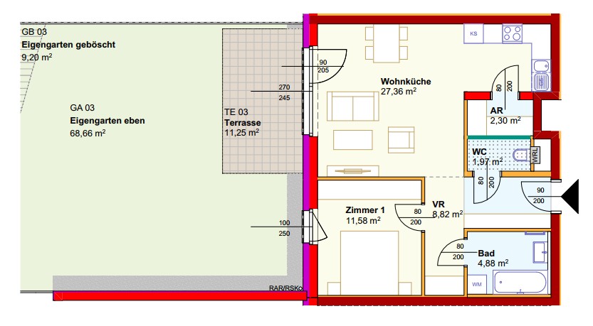
Zimmer56,91 m²
WohnflächeAufteilung und Ausstattung
Raumaufteilung
Zimmer: 2
Terrasse: 1
Zusätzliche Austattungen
Eigengarten
PKW-Stellplatz im Freien
Terrasse
Verfügbarkeitsdatum: 30.11.2026
Energieausweis: HWBSK 22.5 kWh/m² | fGEE 0.52 (Klasse A++)
Kosten
Ihre Kosten setzen sich aus folgenden Positionen zusammen.
Finanzierungsbeitrag: 26.993,21 €
monatliche Kosten: 674,57 €
Ansichten und Pläne
Lage des Objekts
Die dargestellte Position der Immobilie ist nur eine ungefähre Angabe.
Hat diese Immobilie ihr Interesse geweckt?
Sehr geehrte/r Interessent/in!
Vielen Dank für Ihre Nachricht! Die gegenständliche Wohneinheit wird über das NÖ-Wohnservice vergeben. Bei Interesse ersuchen wir Sie, sich direkt online beim NÖ-Wohnservice zu bewerben.
(Kontakt: www.noe-wohnservice.at bzw. 02742/22133

