Hauptstraße 13 / Top 11
Vergabe
VerfügbarkeitWohnung
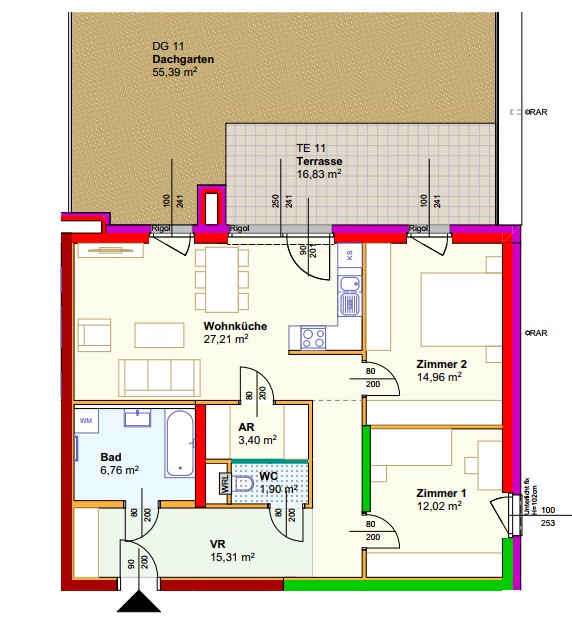
Objekttyp3
Zimmer81,56 m²
WohnflächeAufteilung und Ausstattung
Raumaufteilung
Zimmer: 3
Terrasse: 1
Zusätzliche Austattungen
Einlagerungsraum
PKW-Stellplatz im Freien
Terrasse
Verfügbarkeitsdatum: 01.11.2026
Energieausweis: HWBSK 22.5 kWh/m² | fGEE 0.52 (Klasse A++)
Kosten
Ihre Kosten setzen sich aus folgenden Positionen zusammen.
Finanzierungsbeitrag: 28.000,00 €
monatliche Kosten: 916,89 €
Ansichten und Pläne
Lage des Objekts
Hauptstraße 13 , 2093 Geras, Österreich (auf Google Maps ansehen)
Hat diese Immobilie ihr Interesse geweckt?


