Stiege 1 / Top 08
Vergabe
VerfügbarkeitWohnung
Objekttyp2
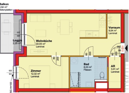
Zimmer53,43 m²
WohnflächeAufteilung und Ausstattung
Raumaufteilung
Zimmer: 2
Balkon: 1
Loggia: 1
Zusätzliche Austattungen
Balkon
Einlagerungsraum
Loggia
PKW-Stellplatz im Freien
Verfügbarkeitsdatum: 30.06.2026
Energieausweis: HWBSK 32 kWh/m² | fGEE 0.64 (Klasse A+)
Kosten
Ihre Kosten setzen sich aus folgenden Positionen zusammen.
Finanzierungsbeitrag: 3.689,38 €
monatliche Kosten: 621,31 €
Ansichten und Pläne
Lage des Objekts
Dobermannsdorfer Straße 394 , 2182 Palterndorf, Österreich (auf Google Maps ansehen)
Hat diese Immobilie ihr Interesse geweckt?


